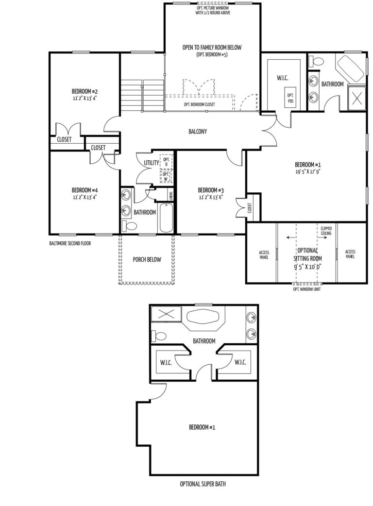
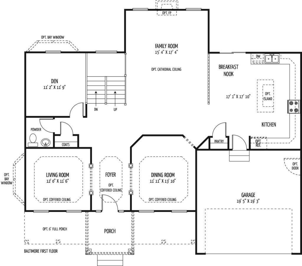
Welcome home to four+ bedrooms, two and a half bath in this immense two-story colonial style home. The open floor plan of offers a two story family room, an affluent gourmet style kitchen with an optional island/ breakfast bar, and master suite with a walk-in closet and super bath. Large living room and dining room offer stately feel. Optional sitting room off master and finished basement available.
© Ameri-Star Homes | Privacy Policy | Sitemap
Website Marketing Provided by Adventure Web Interactive

