
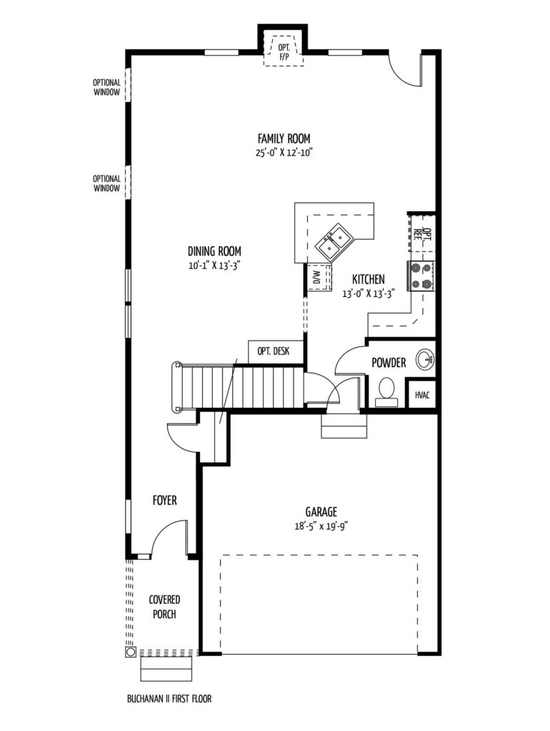
Generous 4 bedroom home with 2 car garage has a fabulous open floor plan! Gourmet inspired kitchen with peninsula! Large dining and living rooms! The fabulous master suite has private spa-inspired super-bath! Great bedroom and closet spaces! 2nd-floor laundry! Optional finished basement available!