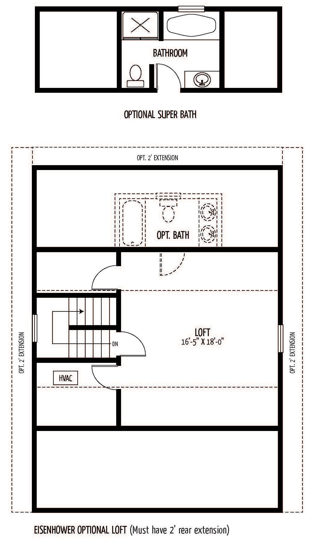
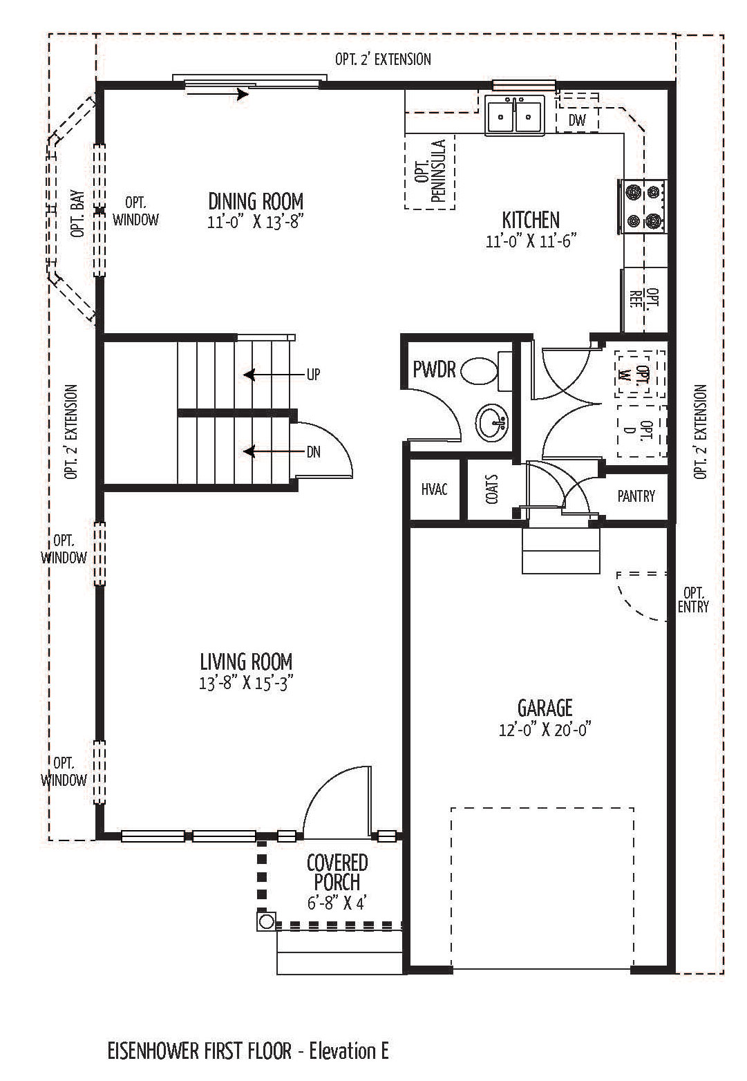
Eisenhower

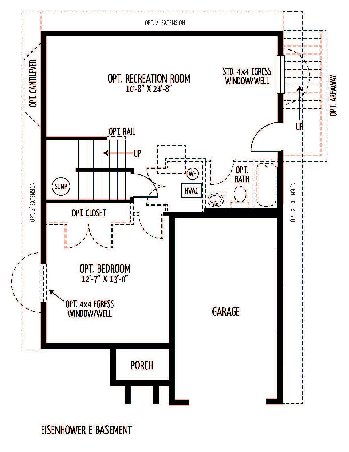
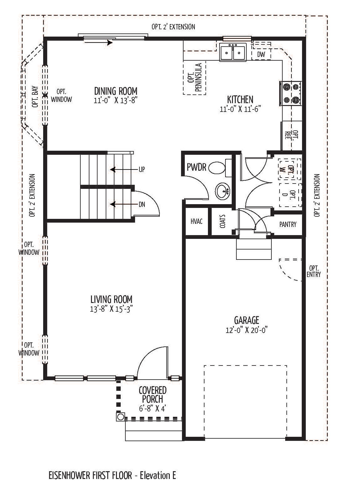
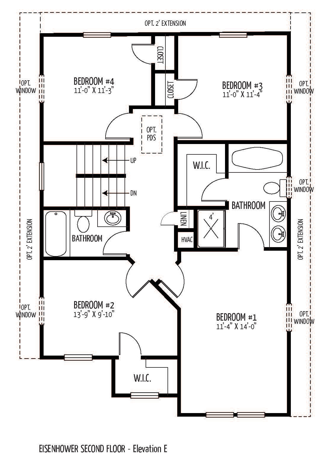
Generous four bedroom colonial comes standard with super bath in master suite. The first floor brags a laundry station, one car garage, and a formal dining room. An optional finished basement and fifth bedroom available.

  • 1st Floor
  • 2nd Floor
  • Basement
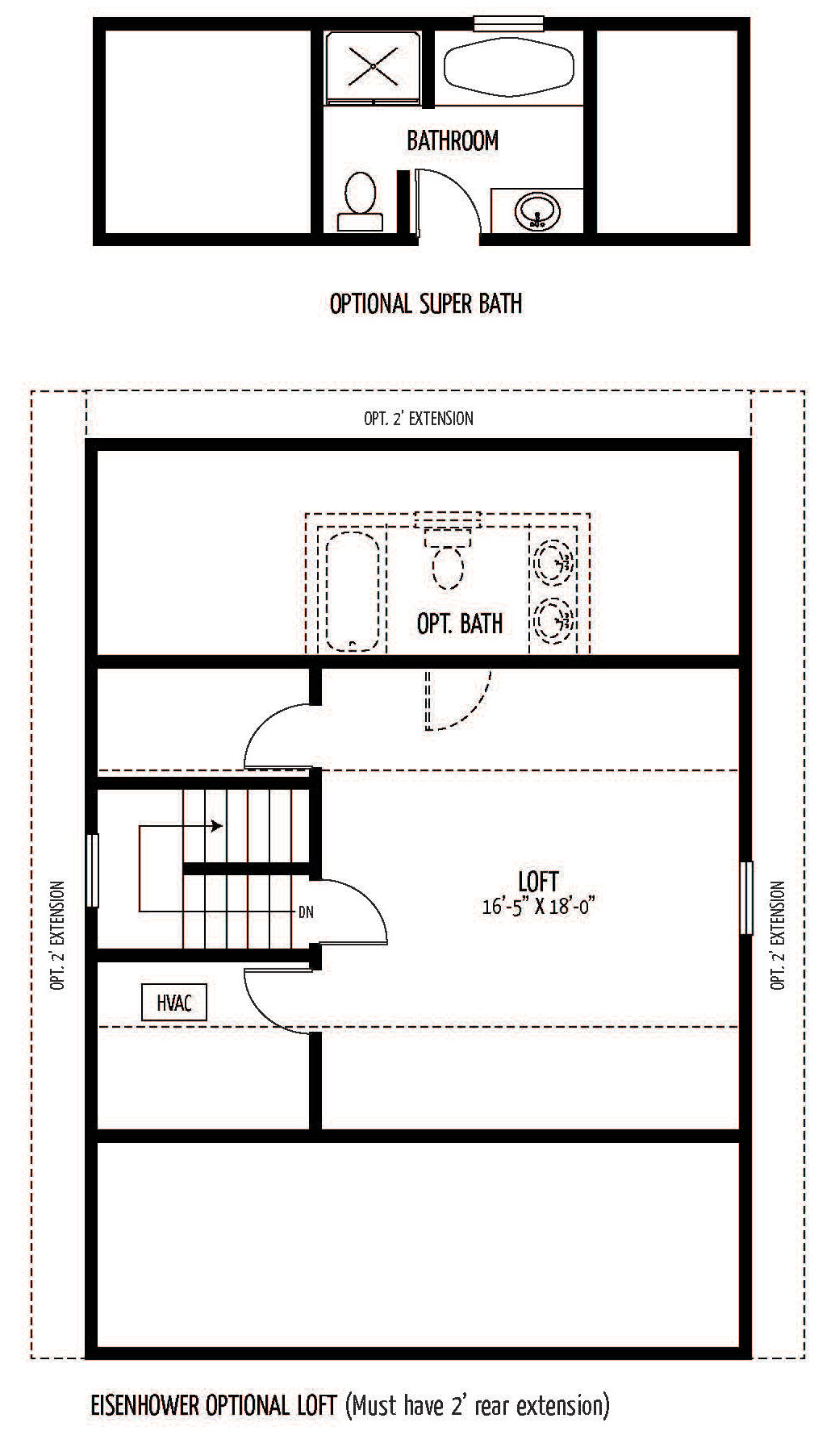
  • Optional Loft

Contact Ameri-Star Homes Today!