
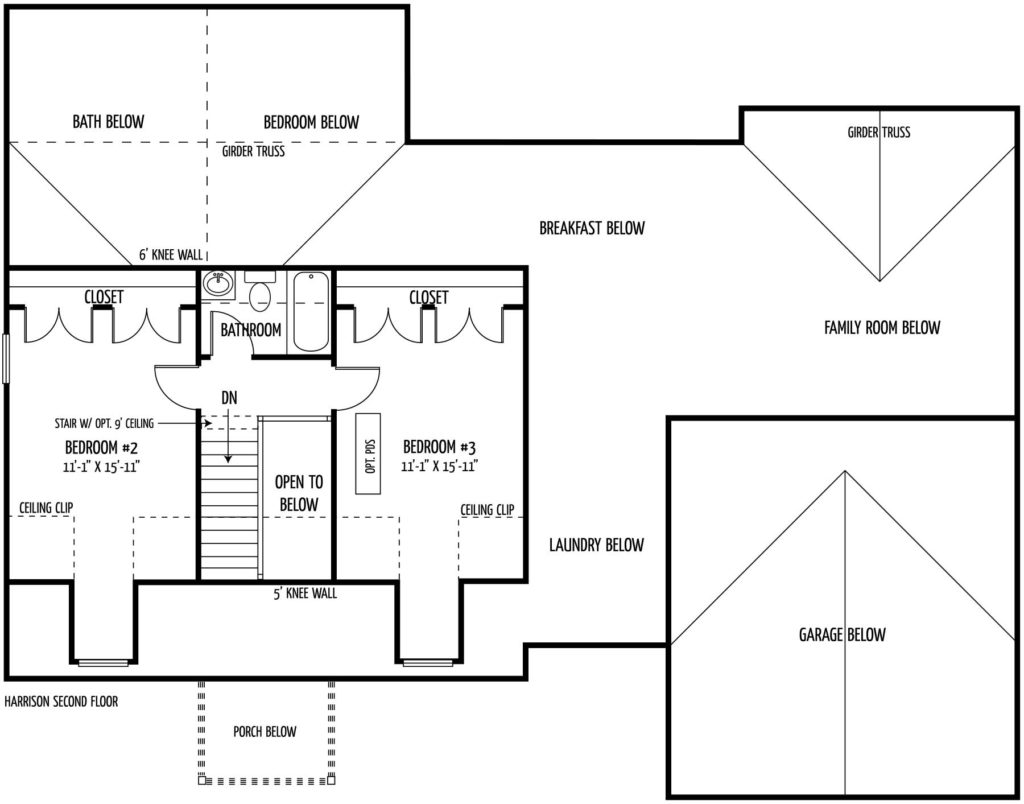
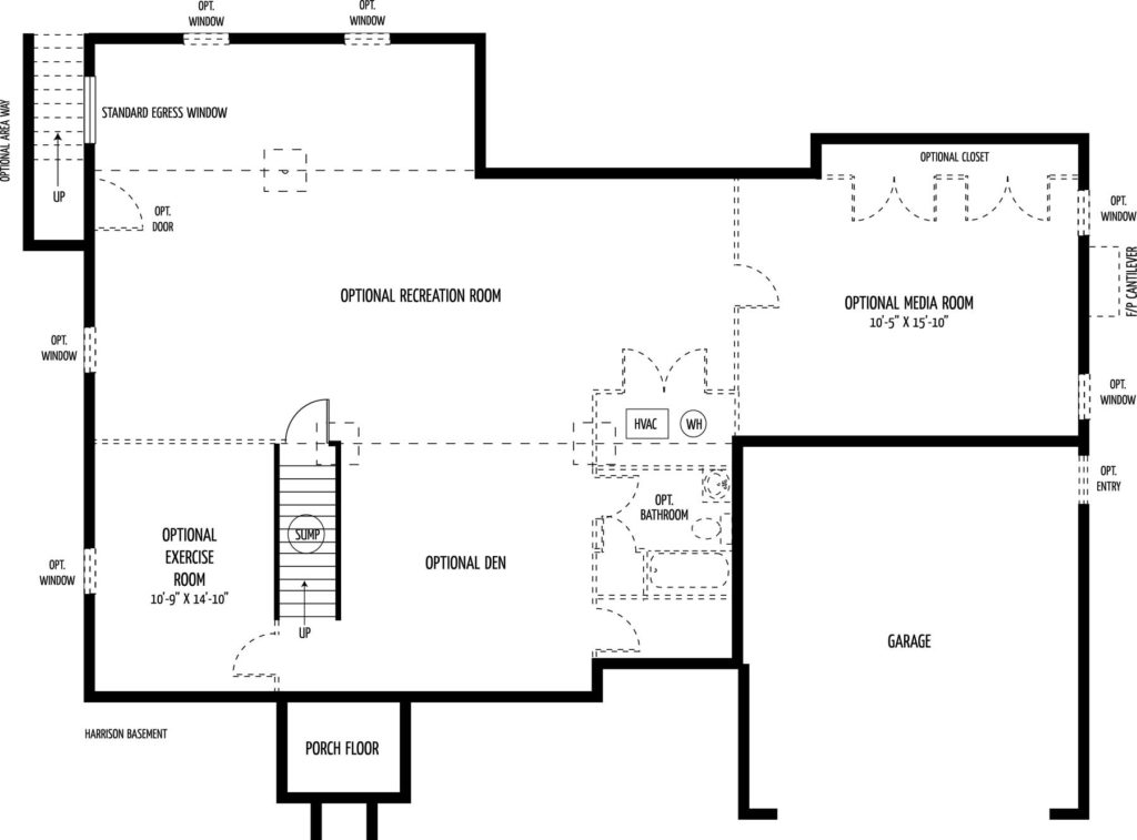
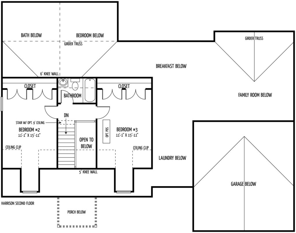
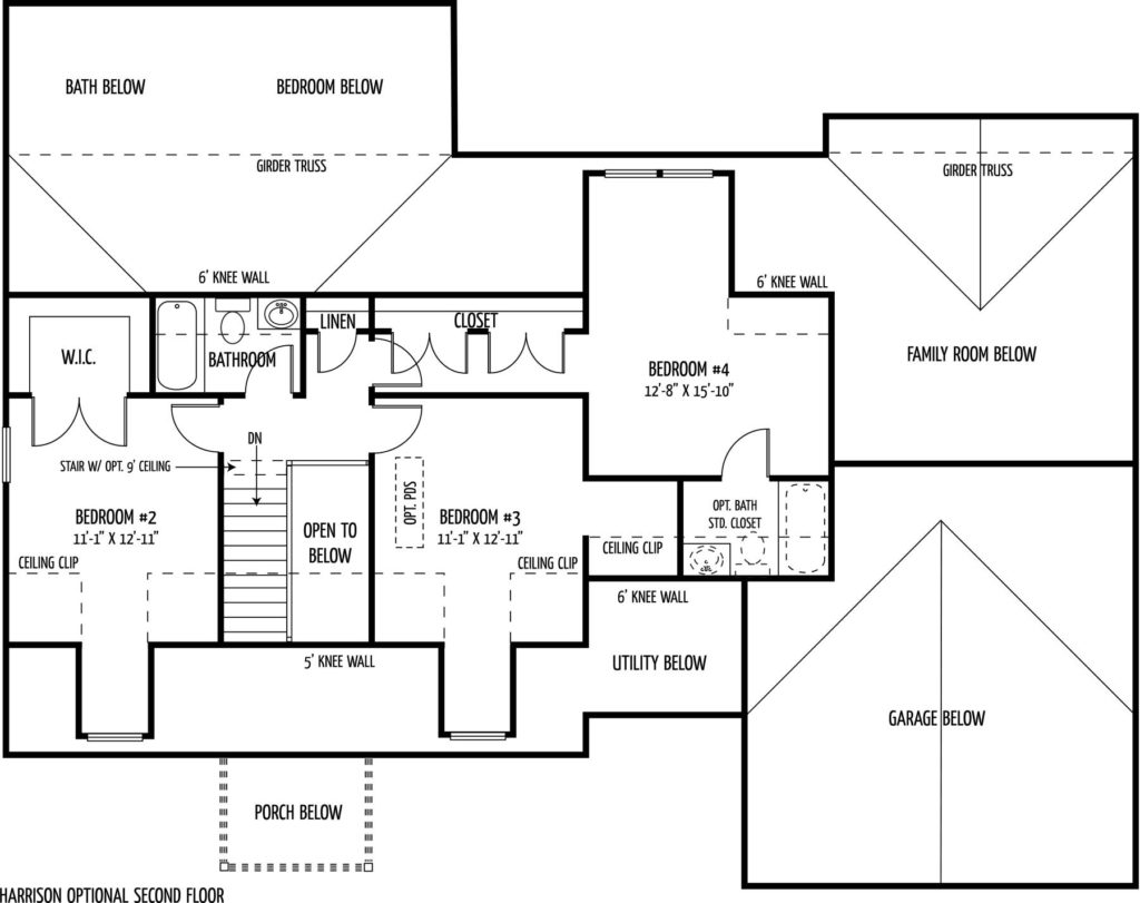
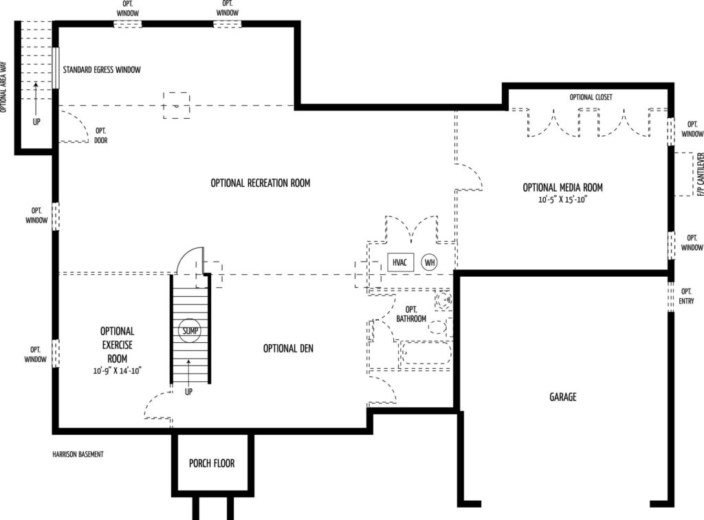
Fantastic Cape Cod that features three spacious bedrooms, two and a half baths. First floor master suite boasts super bath and dual walk-in closets. Standards include formal living and dining rooms, breakfast nook, large kitchen and family rooms, and a two car garage. Optional finished basement available.