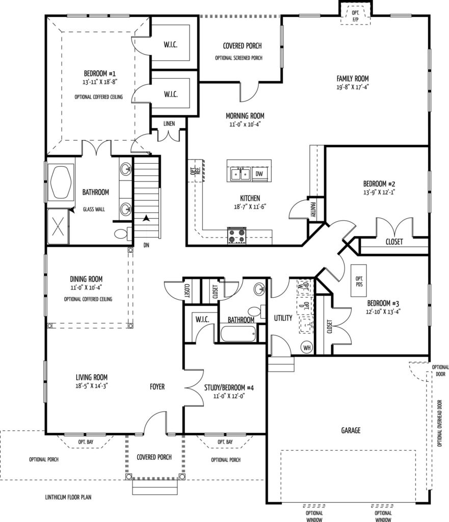
Linthicum

Bedrooms: 4
Baths: 2
Garage: 2-car
Square Feet: 2,648

Impressive rancher truly defines one level living! Four bedrooms featuring large master suite with super bath. Expansive open kitchen with island, formal living and dining rooms, family room and even a morning room! Rear covered porch. Optional finished basement available.

  • 1st Floor
  • Basement

Contact Ameri-Star Homes Today!