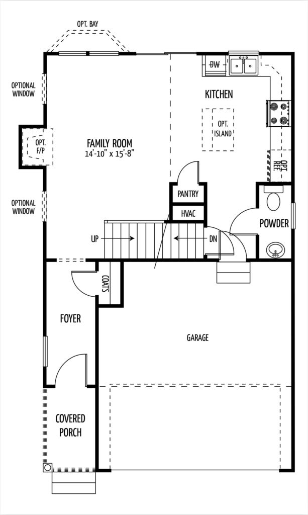
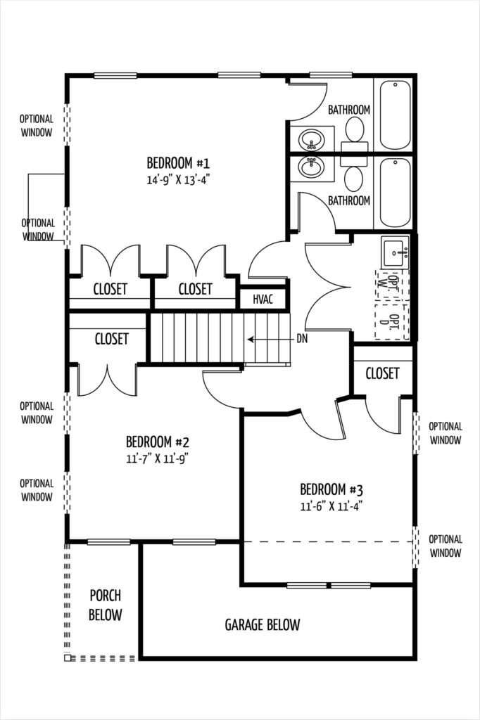
Fresh and affordable three bedroom, two and a half bath colonial has a two car garage. Standard features include covered front porch, coat closet, kitchen with an island and pantry, and powder room. Master bedroom has his and hers closets and full bath. Washer and dryer closet is located on the bedroom level. Optional finished basement and super bath in master available.
© Ameri-Star Homes | Privacy Policy | Sitemap
Website Marketing Provided by Adventure Web Interactive

