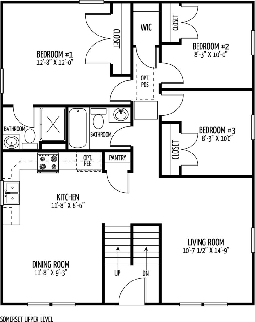
Somerset

Bedrooms: 3
Baths: 2
Garage: 0-car
Square Feet: 1,080

Practical three bedroom, two bath split foyer offers separate living room, dining room, and an open kitchen standard. An optional family room, full bath, and additional bedrooms are available on the lower level.

  • 1st Floor
  • Basement

Contact Ameri-Star Homes Today!