Sussex

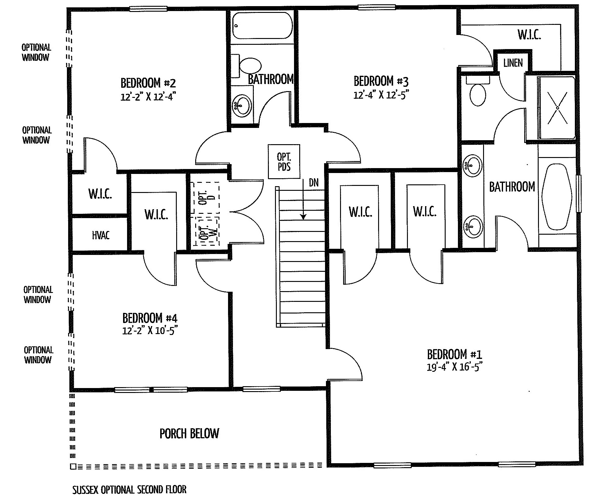
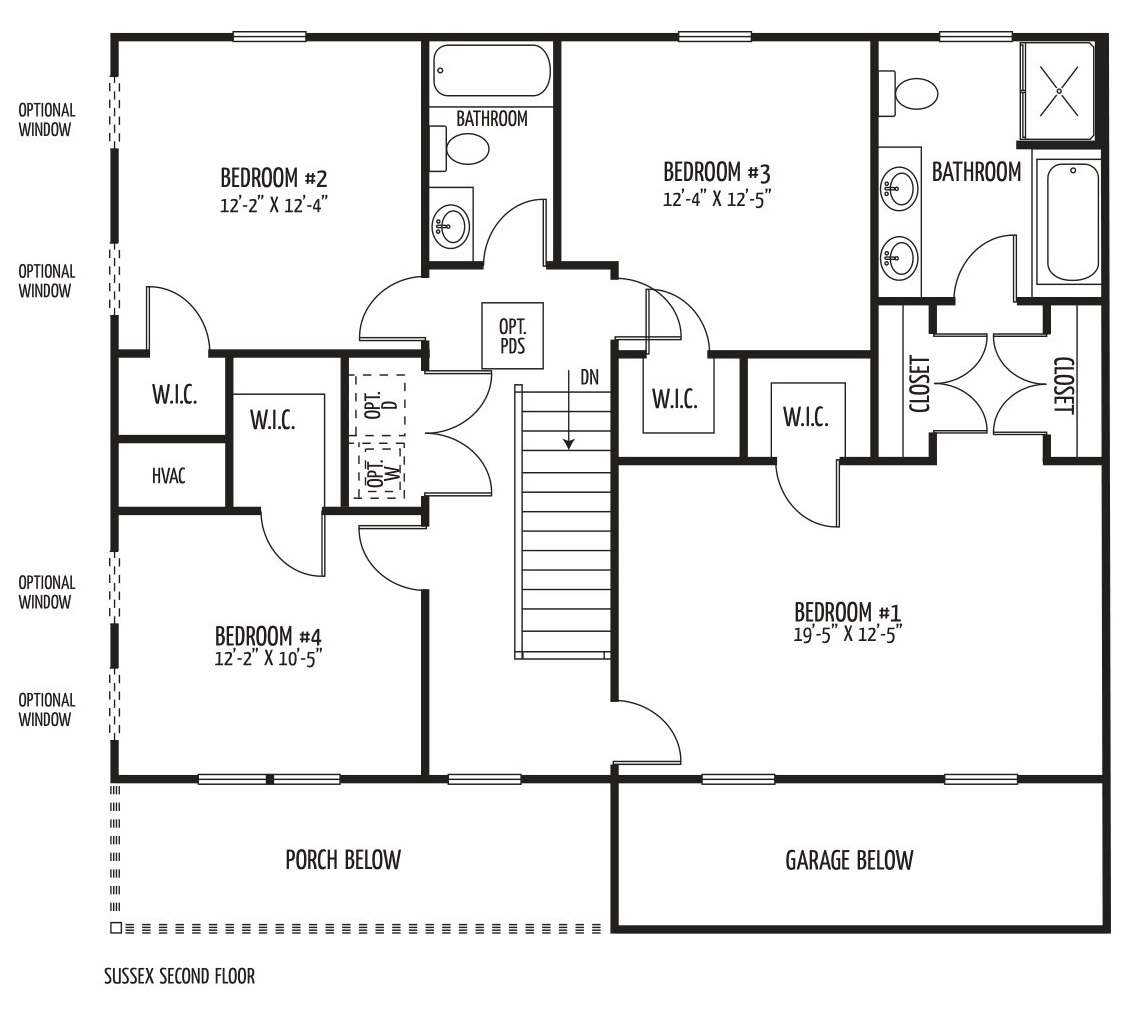
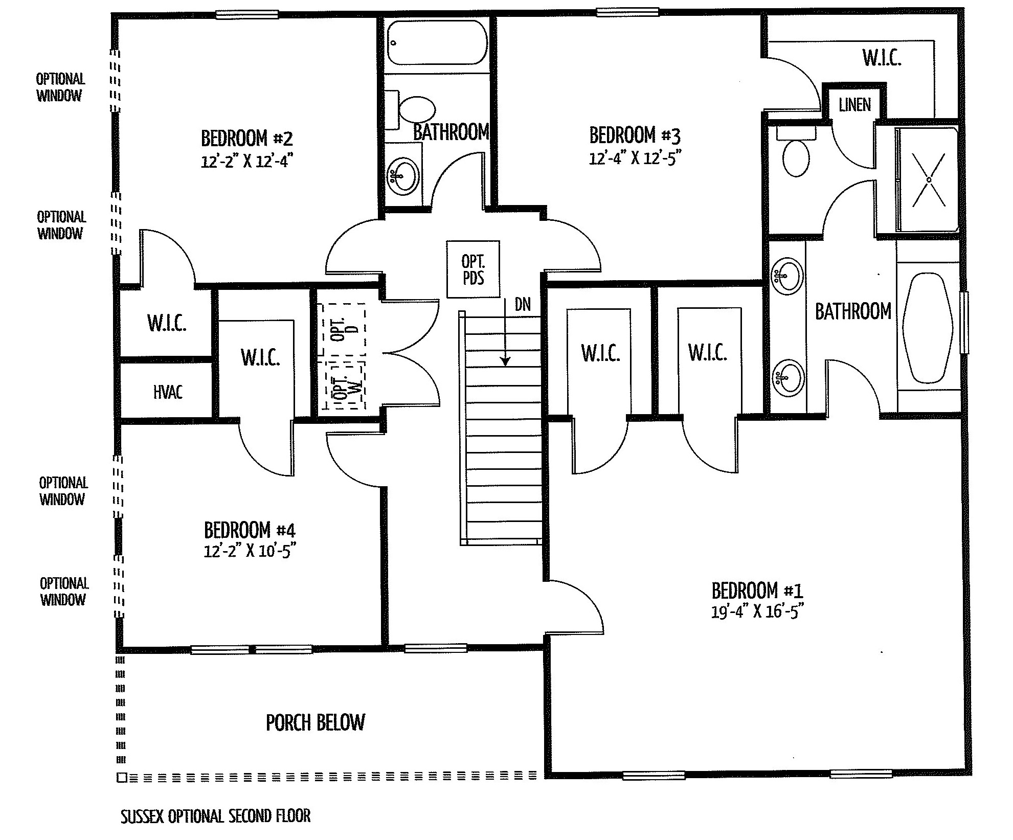
Bedrooms: 4
Full Baths: 2.5
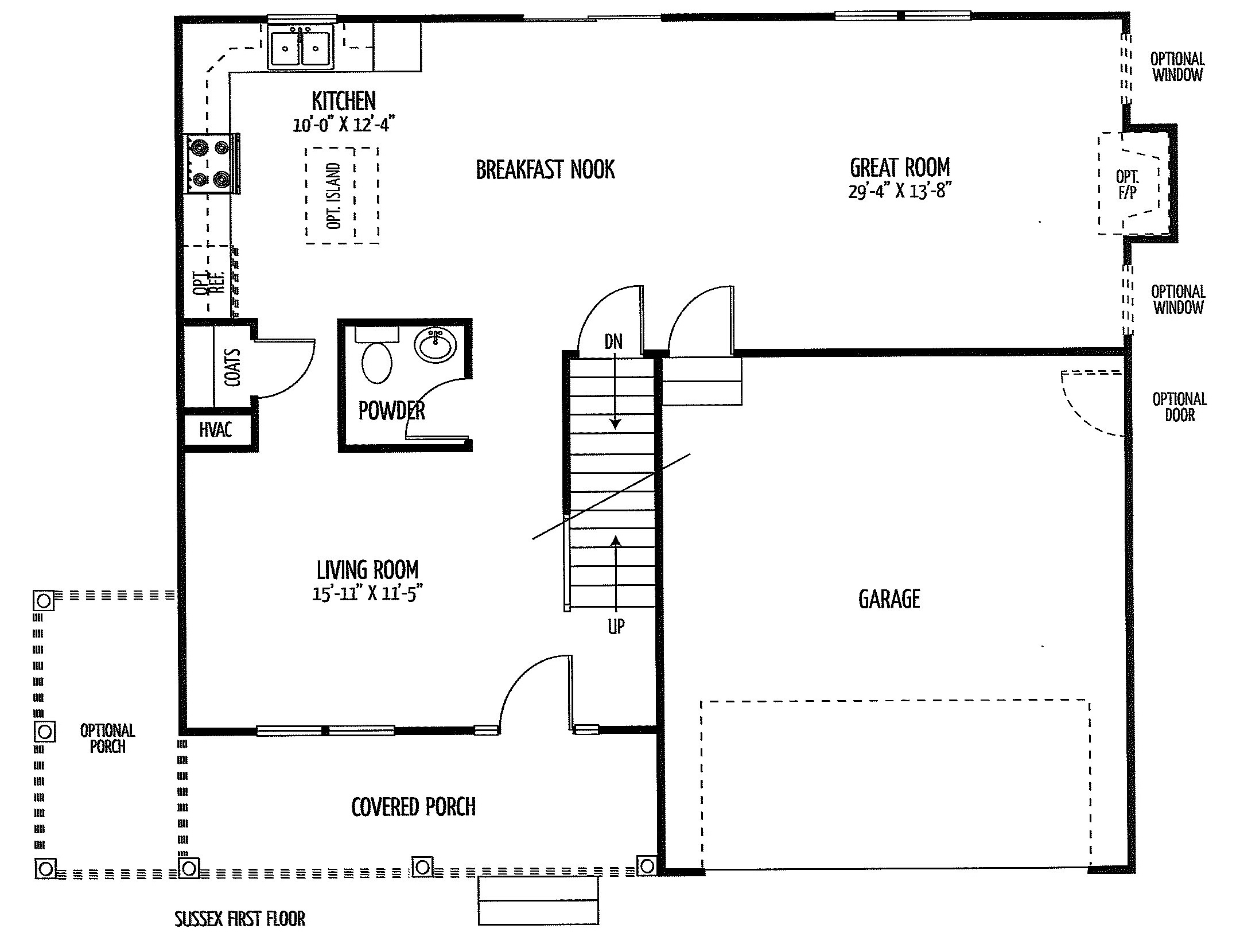
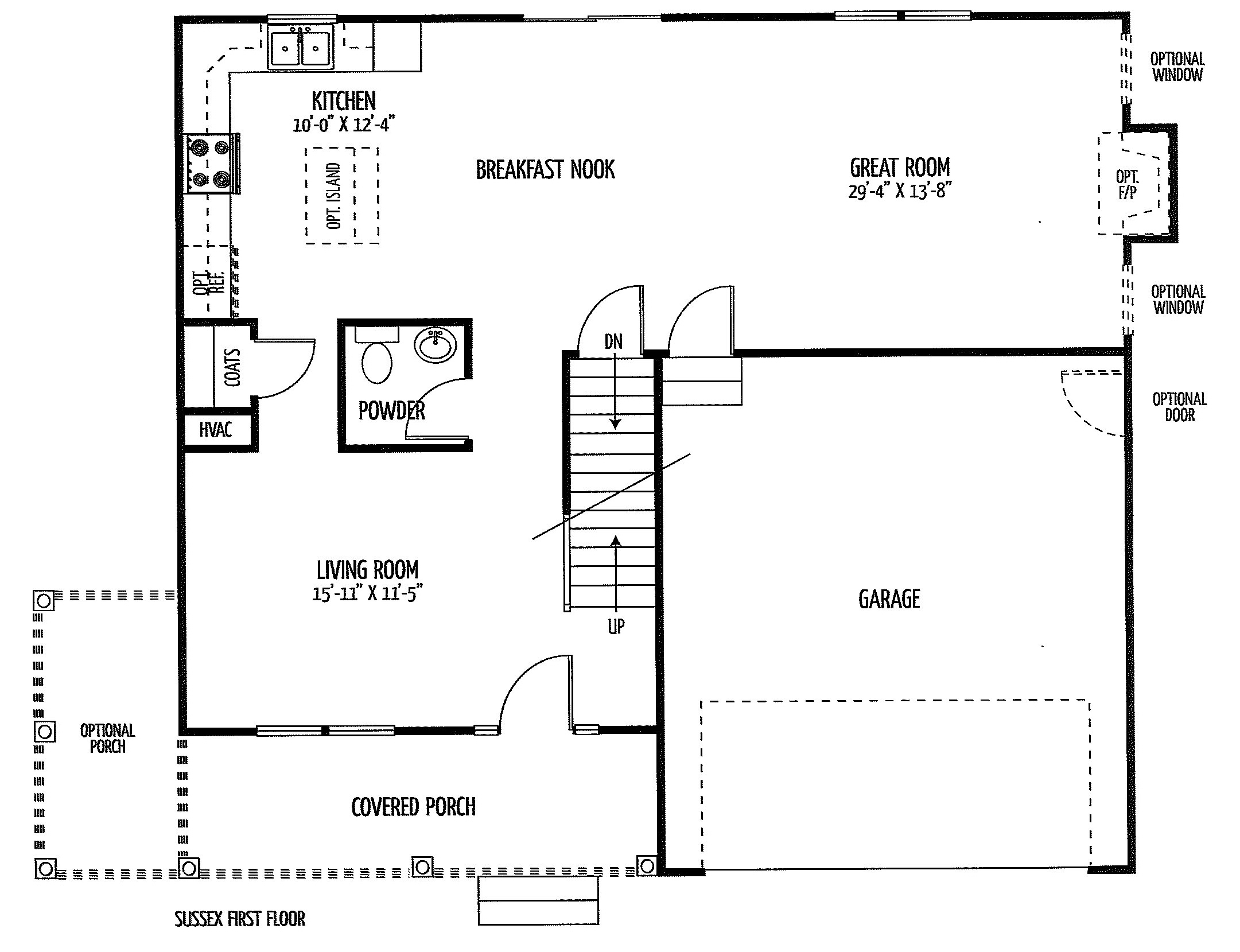
Garage: 2-car
Square Feet: 2,086

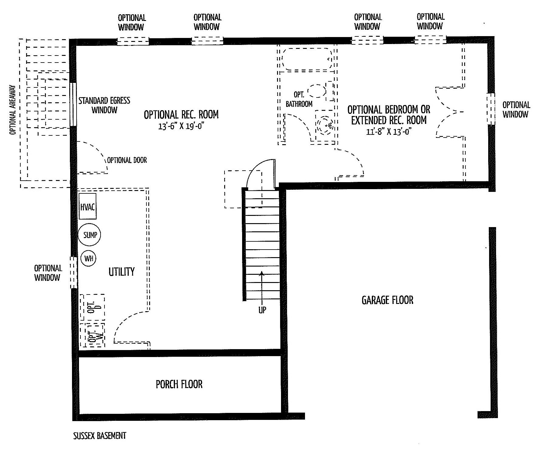
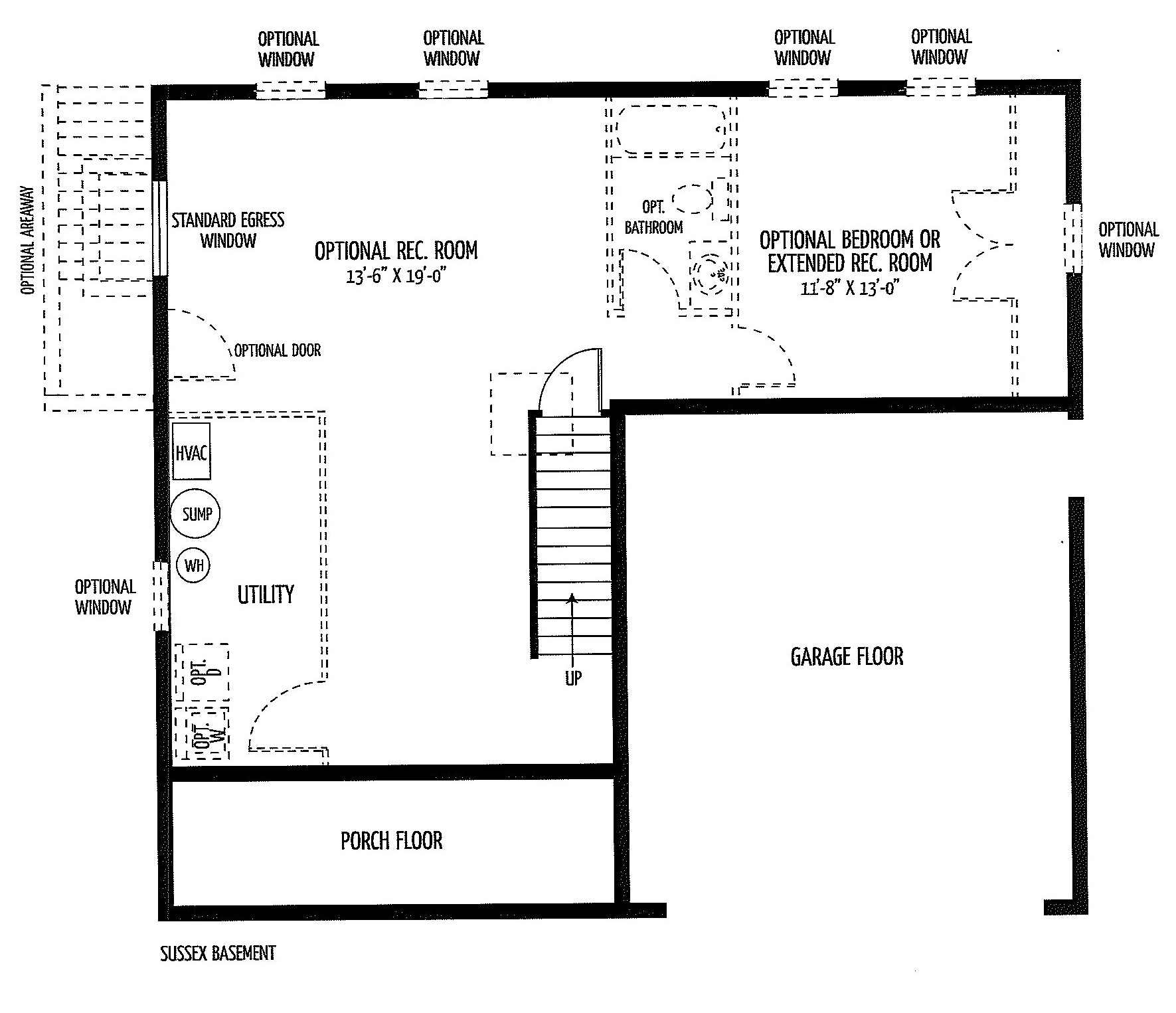
Impressive four bedroom, two and a half bath colonial has a covered full front porch and a two car garage. Living room, powder room, breakfast nook, great room, and kitchen with pantry set the stage for this smart open floor plan. All bedrooms include a walk-in closet and the master has an additional his and hers closet and a super bath. Optional finished basement available.

  • 1st Floor
  • 2nd Floor
  • 2nd Floor Optional
  • Basement

Contact Ameri-Star Homes Today!